top of page

Angus Dr. Laneway House
Vancouver BC
Status: Under Construction
Status: Under Construction


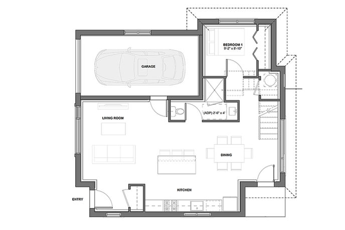
Ground Floor Plan
Upper Floor Plan




Angus Dr. Laneway House
Vancouver BC
Ground Floor Plan


Upper Floor Plan
Gee St. Garden Suite
Maple Ridge
Status: BP Application in Progress
Status: BP Application in Progress


Ground Floor Plan


W13th Ave Laneway House
Vancouver BC
Status: Completed
Status: Completed
bottom of page